India's best property portal to buy property in India - Proptiger.com
Possession : Nov'24
Rera
Eklingji Radhe Exotica
₹ 40.00 L - ₹ 41.00 L
Builder Price
Home Loan EMI starts at ₹ 31,011
Configuration
2 BHK
Carpet Area1 sq M = 10.76 sq ft
639 - 658 sq ft
Possession Status
Completed
Avg. Price
₹ 4,996 sq.ft
Overview
  • Possession Start Date
    Nov'24
  • Status
    Completed
  • Total Area
    0.51 Acres
  • Total Launched apartments
    68
  • Launch Date
    Sep'20
  • Availability
    New and Resale
  • RERA ID
    PR/GJ/AHMEDABAD/SANAND/AUDA/MAA08836/280721
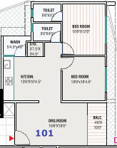
Eklingji Radhe Exotica Floor Plans
  • 2 BHK
₹ 40.00 L
Eklingji Radhe Exotica Amenities

About Eklingji Projects LLP

Eklingji Projects LLP
  • Total Projects15
  • Ongoing Projects7

More projects by Eklingji Projects LLP

Similar Projects

Developer Network

  • 400+
    Reputed Developers