India's best property portal to buy property in India - Proptiger.com
Possession : Jul'25
Rera
RR WishTales
₹ 1.21 Cr - ₹ 1.76 Cr
Builder Price
Home Loan EMI starts at ₹ 1.08 L
Configuration
2, 3 BHK
Builtup area1 sq M = 10.76 sq ft
1,193 - 1,531 sq ft
Possession Status
Under Construction
Avg. Price
₹ 9,750 sq.ft
QR Image
Overview
  • Possession Start Date
    Jul'25
  • Status
    Under Construction
  • Total Area
    1.25 Acres
  • Total Launched apartments
    101
  • Launch Date
    Jun'23
  • Availability
    New
  • RERA ID
    PRM/KA/RERA/1251/309/PR/030623/005968

Salient Features

  • Vastu compliant, privacy ensured for every home
  • Great value addition ( 75.5% living area )
  • Located within 1.2 Km of jakkur cross metro station & Pheonix mall of Asia
  • Excellent connectivity to BLR - HYD road
  • Dasarahalli Metro Station 3.3 km Away

Project Specifications

Doors
Internal:
Sal Wood Frame
Main:
Teak Wood Frame
Walls
Interior:
Emulsion Paint
Exterior:
Asian Paint
Fittings
Toilets:
CP Fittings of Jaquar / Marc or Equivalent
Others
Windows:
2 Track UPVC Sliding Window with Mosquito Mesh Shutter
Wiring:
Concealed Fire Resistant Copper Wiring
Flooring
Toilets:
Anti Skid Ceramic Tiles
Living/Dining:
Vitrified Tiles
Master Bedroom:
Vitrified Tiles
Other Bedroom:
Vitrified Tiles
Kitchen:
Vitrified Tiles
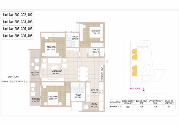
RR WishTales Floor Plans
  • 2 BHK
  • 3 BHK
₹ 1.39 Cr
₹ 1.21 Cr
RR WishTales Amenities

About MSR Infraa

  • Total Projects1
  • Ongoing Projects1

More projects by MSR Infraa

Similar Projects

Developer Network

  • 400+
    Reputed Developers