
PROJECT RERA ID : Rera Not Applicable
GK Sri Sai Vishnuby GK Flats
Price on request
Builder Price
1, 2 BHK
Apartment
564 - 1,021 sq ft
Builtup area
Project Location
Madipakkam, Chennai
Overview
- Feb'16Possession Start Date
- CompletedStatus
- 6Total Launched apartments
- Mar'15Launch Date
- ResaleAvailability
More about GK Sri Sai Vishnu
GK Flats Sri Sai Vishnu has an availability of lavish apartments of premium quality in the Madipakkam region of Chennai. The apartments are all set for moving in purpose. Necessities like park, bank, hospital, bus station, petrol pump, ATM, restaurant all are available in the neighbourhood. The other guarantees of the project are a contamination free setting along with covered parking space for each apartment, gym, club house, and security for 24 hours, a power backup system and much more. The p...read more
Approved for Home loans from following banks
![HDFC (5244) HDFC (5244)]()
![LIC LIC]()
![Axis Bank Axis Bank]()
![PNB Housing PNB Housing]()
![Indiabulls Indiabulls]()
![Citibank Citibank]()
![DHFL DHFL]()
![GIC Housing Finance GIC Housing Finance]()
![L&T Housing (DSA_LOSOT) L&T Housing (DSA_LOSOT)]()
![IIFL IIFL]()
- + 5 more banksshow less
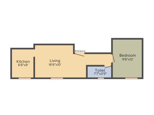
GK Sri Sai Vishnu Floor Plans
- 1 BHK
- 2 BHK
| Floor Plan | Area | Builder Price |
|---|---|---|
![]() | 564 sq ft (1BHK+1T) | - |
Report Error
Our Picks
- PriceConfigurationPossession
- Current Project
GK Sri Sai Vishnuby GK FlatsMadipakkam, ChennaiData Not Available1,2 BHK Apartment564 - 1,021 sq ftFeb '16 - Recommended
Shriram Park 63 Phase 3by Shriram Properties Ltd ChennaiVelachery, ChennaiData Not Available2,3 BHK Apartment710 - 1,399 sq ftAug '22 - Recommended
Jains Anarghyaby Jain Housing And ConstructionPallikaranai, ChennaiData Not Available2 BHK Apartment848 - 879 sq ftAug '25
GK Sri Sai Vishnu Amenities
- Lift Available
- Closed Car Parking
GK Sri Sai Vishnu Specifications
Doors
Internal:
Teak Wood Frame and Shutter
Main:
Teak Wood Frame and Shutter
Flooring
Balcony:
Ceramic Tiles
Kitchen:
Ceramic tiles
Living/Dining:
Ceramic Tiles
Master Bedroom:
Ceramic Tiles
Other Bedroom:
Ceramic Tiles
Toilets:
Ceramic Tiles
Gallery
GK Sri Sai VishnuElevation
GK Sri Sai VishnuFloor Plans
Payment Plans

Contact NRI Helpdesk on
Whatsapp(Chat Only)
Whatsapp(Chat Only)
+91-96939-69347
Contact Helpdesk on
Whatsapp(Chat Only)
Whatsapp(Chat Only)
+91-96939-69347
About GK Flats

- 5
Total Projects - 1
Ongoing Projects - RERA ID
Similar Projects
- PT ASSIST
Shriram Shriram Park 63 Phase 3by Shriram Properties Ltd ChennaiVelachery, ChennaiPrice on request - PT ASSIST
Jains Anarghyaby Jain Housing And ConstructionPallikaranai, ChennaiPrice on request - PT ASSIST
Lancor Infinysby Lancor HoldingsKeelkattalai, Chennai₹ 1.11 Cr - ₹ 2.55 Cr - PT ASSIST
Urban Excellence Phase 1 by Urban Treeby Urban Tree Real Estate Developers LLPManapakkam, Chennai₹ 78.00 L - ₹ 1.58 Cr - PT ASSIST
Casagrand Flagshipby Casagrand Builder Private LimitedPallikaranai, Chennai₹ 65.08 L - ₹ 1.23 Cr
Discuss about GK Sri Sai Vishnu
comment
Disclaimer
PropTiger.com is not marketing this real estate project (“Project”) and is not acting on behalf of the developer of this Project. The Project has been displayed for information purposes only. The information displayed here is not provided by the developer and hence shall not be construed as an offer for sale or an advertisement for sale by PropTiger.com or by the developer.
The information and data published herein with respect to this Project are collected from publicly available sources. PropTiger.com does not validate or confirm the veracity of the information or guarantee its authenticity or the compliance of the Project with applicable law in particular the Real Estate (Regulation and Development) Act, 2016 (“Act”). Read Disclaimer
The information and data published herein with respect to this Project are collected from publicly available sources. PropTiger.com does not validate or confirm the veracity of the information or guarantee its authenticity or the compliance of the Project with applicable law in particular the Real Estate (Regulation and Development) Act, 2016 (“Act”). Read Disclaimer































