
Shriram Prarthanaby Shriram
Price on request
Builder Price
2, 3 BHK
Apartment
909 - 1,583 sq ft
Builtup area
Project Location
Manapakkam, Chennai
Overview
- Aug'13Possession Start Date
- CompletedStatus
- 5Total Launched apartments
- Jul'12Launch Date
- ResaleAvailability
Salient Features
- Modern amenities like rainwater harvesting
- Accessibility to key landmarks
- Schools, hospitals, restaurants, banks are some of the civic amenities
More about Shriram Prarthana
Shriram Prarthana, located in Manapakkam, Chennai, offers apartments with the price being on request. It provides amenities rainwater harvesting, and car parking. Manapakkam is very well connected to Chennai through an extensive network of roads. It is surrounded by Poonamallee Taluk towards the west, Ambattur Taluk towards the north, St. Thomas Mount Taluk towards the south and Chennai Taluk towards the east. There are many renowned schools and hospitals here. The key builders include Shriram B...read more
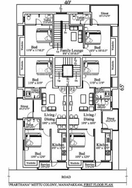
Shriram Prarthana Floor Plans
- 2 BHK
- 3 BHK
| Floor Plan | Area | Builder Price |
|---|---|---|
![]() | 909 sq ft (2BHK+2T) | - |
Report Error
Our Picks
- PriceConfigurationPossession
- Current Project
Shriram Prarthanaby ShriramManapakkam, ChennaiData Not Available2,3 BHK Apartment909 - 1,583 sq ftAug '13 - Recommended
Excellenceby Urban Tree InfrastructuresManapakkam, Chennai₹ 84.48 L - ₹ 1.71 Cr2,3,4 BHK Apartment1,061 - 2,153 sq ftDec '25 - Recommended
Sangamamby Premier Housing and Properties ChennaiRamapuram, Chennai₹ 84.05 L - ₹ 2.37 CrPlot850 - 2,400 sq ftOct '23
Shriram Prarthana Amenities
- Rain Water Harvesting
- Car Parking
Shriram Prarthana Specifications
Doors
Internal:
Teak Wood Frame
Main:
Teak Wood Frame
Flooring
Balcony:
Granamite Tiles
Kitchen:
Granamite Tiles
Living/Dining:
Granamite Tiles
Master Bedroom:
Granamite Tiles
Other Bedroom:
Granamite Tiles
Toilets:
Anti Skid Tiles
Gallery
Shriram PrarthanaElevation
Shriram PrarthanaFloor Plans
Shriram PrarthanaNeighbourhood
Contact NRI Helpdesk on
Whatsapp(Chat Only)
Whatsapp(Chat Only)
+91-96939-69347
Contact Helpdesk on
Whatsapp(Chat Only)
Whatsapp(Chat Only)
+91-96939-69347
About Shriram

- 26
Years of Experience - 10
Total Projects - 0
Ongoing Projects - RERA ID
Founded in 2001, Shriram Builders is a leading real estate company. Shriram Builders strives to offer affordable housing solutions. The list of property by Shriram Builders includes multiple residential projects in Chennai. Unique Selling Point The company is known for reliability, transparency, integrity, honesty and timely delivery of projects. The company is known for its engineering expertise and design excellence. The company is known for architectural excellence and offers projects in pri... read more
Similar Projects
- PT ASSIST
Excellenceby Urban Tree InfrastructuresManapakkam, Chennai₹ 84.48 L - ₹ 1.71 Cr - PT ASSIST
Premier Sangamamby Premier Housing and Properties ChennaiRamapuram, Chennai₹ 84.05 L - ₹ 2.37 Cr - PT ASSIST
Sidharth Squareby Sidharth Foundations And HousingManapakkam, Chennai₹ 62.20 L - ₹ 1.49 Cr - PT ASSIST
Casagrand Elysiumby Casagrand Builder Private LimitedManapakkam, Chennai₹ 54.31 L - ₹ 87.67 L - PT ASSIST
NM Ebonyby NMManapakkam, ChennaiPrice on request
Discuss about Shriram Prarthana
comment
Disclaimer
PropTiger.com is not marketing this real estate project (“Project”) and is not acting on behalf of the developer of this Project. The Project has been displayed for information purposes only. The information displayed here is not provided by the developer and hence shall not be construed as an offer for sale or an advertisement for sale by PropTiger.com or by the developer.
The information and data published herein with respect to this Project are collected from publicly available sources. PropTiger.com does not validate or confirm the veracity of the information or guarantee its authenticity or the compliance of the Project with applicable law in particular the Real Estate (Regulation and Development) Act, 2016 (“Act”). Read Disclaimer
The information and data published herein with respect to this Project are collected from publicly available sources. PropTiger.com does not validate or confirm the veracity of the information or guarantee its authenticity or the compliance of the Project with applicable law in particular the Real Estate (Regulation and Development) Act, 2016 (“Act”). Read Disclaimer
























