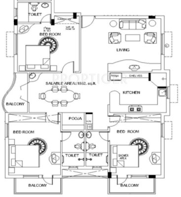
3 BHK Apartment
1,862 sq ft



Launched by Nahar Foundations, Panache, is a premium housing project located at Medavakkam in Chennai. Offering 3 BHK Apartment in OMR are available from 1862 sqft. The project is Completed project and possession in Feb 08.
