


- Possession Start DateNov'15
- StatusCompleted
- Total Launched apartments80
- Launch DateJul'14
- AvailabilityResale
Salient Features
- 3 open side properties, smart homes, luxurious properties, intelligent home access control
- Close to cineplex
- The project offers apartment with perfect combination of contemporary architecture and features to provide comfortable living
- The site is in close proximity to various civic utilities
- Gated community
More about Ruby Deluxe
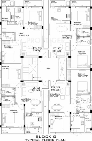
Ruby Deluxe Chennai is an upcoming residential project that will be featuring 1 and 2 bedroomed apartments in sizes of 508-550 sq. ft. and 743-960 sq. ft. respectively. There are a total of 80 units on offer, assuring well-designed and efficiently planned apartments that provide a sense of aesthetic beauty to meet the needs and preferences of modern day families. The project, presently under construction will also be offering to its residents a range of modern day facilities and amenities aimed ...View more
![HDFC (5244) HDFC (5244)]()
![Axis Bank Axis Bank]()
![PNB Housing PNB Housing]()
![Indiabulls Indiabulls]()
![Citibank Citibank]()
![DHFL DHFL]()
![L&T Housing (DSA_LOSOT) L&T Housing (DSA_LOSOT)]()
![IIFL IIFL]()
- + 3 more banksshow less
Project Specifications
- 1 BHK
- 2 BHK
- Car Parking
- Overhead Tank Ground Water Source
- Children's play area
- Gymnasium
- Rain Water Harvesting
- Fire Fighting System
- Power Backup
- ATM
- Vaastu Compliant
- Lift Available
- Staff Quarter
- Landscape Garden and Tree Planting
Ruby Deluxe Gallery
Payment Plans

About Ruby Builders And Promoters

- Years of experience30
- Total Projects53
- Ongoing Projects4
























