India's best property portal to buy property in India - Proptiger.com
New Launch
Possession : Sep'25
Rera
Lucky Heights 3
₹ 56.10 L - ₹ 89.50 L
Builder Price
Home Loan EMI starts at ₹ 43,494
Configuration
2, 3, 4 BHK
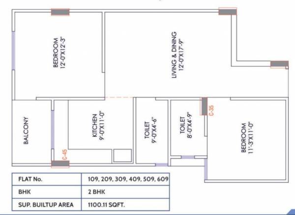
Builtup area1 sq M = 10.76 sq ft
1,100 - 1,755 sq ft
Possession Status
Launch
Avg. Price
₹ 5,100 sq.ft
Overview
  • Possession Start Date
    Sep'25
  • Status
    Launch
  • Total Area
    0.33 Acres
  • Total Launched apartments
    54
  • Launch Date
    Jan'24
  • Availability
    New
  • RERA ID
    RAJ/P/2024/3087 (18/04/2024)

Project Specifications

Flooring
Toilets:
Anti Skid Tiles
Kitchen:
Vitrified Flooring
Master Bedroom:
Vitrified Tiles
Other Bedroom:
Vitrified Tiles
Living/Dining:
Vitrified Flooring
Fittings
Kitchen:
Modular Kitchen
Walls
Exterior:
Paint, Distemper
Interior:
Paint, Distemper
Lucky Heights 3 Floor Plans
  • 2 BHK
  • 3 BHK
  • 4 BHK
₹ 56.10 L
₹ 66.43 L
₹ 89.50 L
Lucky Heights 3 Amenities

About Lucky Construction Jaipur

  • Total Projects1
  • Ongoing Projects1

More projects by Lucky Construction Jaipur

Similar Projects

Developer Network

  • 400+
    Reputed Developers