


- Possession Start DateJul'16
- StatusCompleted
- Total Launched villas6
- Launch DateApr'14
- AvailabilityResale
More about Visal The Bliss
Visal The Bliss in Varapuzha, Kochi is offering delightful homes. The project is under construction. Villas are available through the builder as well as via resale. Several amenities are proposed for the community which include a gymnasium, swimming pool, children’s play area, sports facility, power back up, car parking and 24 X 7 security, amongst others. The area is well-connected with the rest of the city via vast road and railway networks ensuring smooth travel...View more
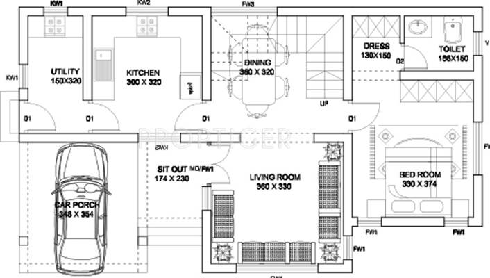
- 3 BHK
- 4 BHK
- Gymnasium
- Swimming Pool
- Children's play area
- Sports Facility
- Power Backup
- Car Parking
- Jogging Track
Visal The Bliss Gallery
About Visal

- Total Projects1
- Ongoing Projects0









