India's best property portal to buy property in India - Proptiger.com
Possession : Sep'24
Rera
Bhagat Exotica
₹ 30.10 L - ₹ 40.63 L
Builder Price
Home Loan EMI starts at ₹ 23,336
Configuration
2, 3 BHK
Builtup area1 sq M = 10.76 sq ft
860 - 1,161 sq ft
Possession Status
Completed
Avg. Price
₹ 3,500 sq.ft
Overview
  • Possession Start Date
    Sep'24
  • Status
    Completed
  • Total Area
    0.16 Acres
  • Total Launched apartments
    20
  • Launch Date
    Mar'22
  • Availability
    New and Resale
  • RERA ID
    WBRERA/P/NOR/2024/002087

Salient Features

  • 22 Mins From Axis And Central Mall.
  • 21 Min From Eco Park.
  • 30 Min From Airport.
  • 20 Min From Chinarpark.
  • 26 Min From Sector5.

Project Specifications

Flooring
Toilets:
Ceramic Tiles
Balcony:
Ceramic Tiles
Kitchen:
Ceramic tiles
Living/Dining:
Vitrified Tiles
Master Bedroom:
Vitrified Tiles
Other Bedroom:
Vitrified Tiles
Others
Wiring:
Concealed Copper Wiring with Adequate Points
Points:
Kitchen
Windows:
Aluminium Sliding Windows
Frame Structure:
RCC framed structure
Switches:
Modular switches
Doors
Internal:
Flush Door
Main:
Wood Frame
Walls
Kitchen:
Ceramic Tiles Dado up to 2 Feet Height Above Platform
Exterior:
Cement Paint
Toilets:
Glazed Tiles Dado
Interior:
Brick Wall
Fittings
Kitchen:
Stainless Steel Sink
Toilets:
Wash Basin
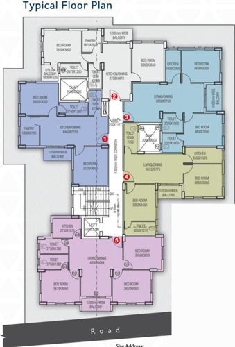
Bhagat Exotica Floor Plans
  • 2 BHK
  • 3 BHK
₹ 30.10 L
₹ 40.63 L
Bhagat Exotica Amenities

About Bhagat Construction

  • Total Projects1
  • Ongoing Projects0

More projects by Bhagat Construction

Similar Projects

Developer Network

  • 400+
    Reputed Developers