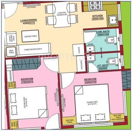
2,3 BHK Apartment
700 - 1,590 sq ft



Sreema Vision brings to you an ultra modern residential project 'Ganpati Kunja'. The project is located at Rajarhat, Kolkata. It offers 2 & 3 BHK residential apartments.Each residential unit here features intelligent space utilization with state of the art amenities. A number of famous schools, colleges, hospitals, temples and every other convenience come close by.Located at an excellent locality of Kolkata which is much far from the hasty tones and fuzziness of the city.






