India's best property portal to buy property in India - Proptiger.com
Possession : Dec'25
Rera
V3 Bhagwan Residency
₹ 88.98 L - ₹ 94.09 L
Builder Price
Home Loan EMI starts at ₹ 68,983
Configuration
1 BHK
Carpet Area1 sq M = 10.76 sq ft
331 - 351 sq ft
Possession Status
Under Construction
Avg. Price
₹ 26,774 sq.ft
Overview
  • Possession Start Date
    Dec'25
  • Status
    Under Construction
  • Total Area
    0.05 Acres
  • Total Launched apartments
    17
  • Launch Date
    Feb'23
  • Availability
    New and Resale
  • RERA ID
    P51800049808

Project Specifications

Flooring
Living/Dining:
Vitrified Tiles
Master Bedroom:
Vitrified Tiles
Other Bedroom:
Vitrified Tiles
Toilets:
Vitrified Tiles
Kitchen:
- Vitrified flooring
Walls
Interior:
Oil Bound Distemper
Kitchen:
Designer Ceramic Tiles above the Centre Level
Toilets:
Designer Tiles Dado
Exterior:
Oil Bound Distemper Paint
Others
Windows:
Anodized Standard Section Sliding
Wiring:
Concealed copper wiring
Frame Structure:
RCC framed structure
Switches:
Modular switches
Fittings
Toilets:
Premium CP Fittings
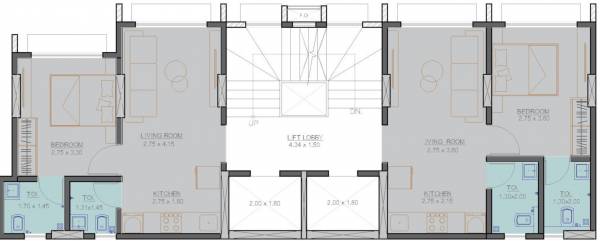
V3 Bhagwan Residency Floor Plans
  • 1 BHK
₹ 88.98 L
V3 Bhagwan Residency Amenities

About V3 Partners

V3 Partners
  • Total Projects6
  • Ongoing Projects2

More projects by V3 Partners

Similar Projects

Developer Network

  • 400+
    Reputed Developers