


- Possession Start DateSep'17
- StatusCompleted
- Total Area2 Acres
- Total Launched apartments42
- Launch DateAug'13
- AvailabilityResale
Salient Features
- Spacious properties, innovative design
- An elegant place at very moderate cost
- Perfect expression of space and design
- Swimming pool, children play area
More about Moraj Maa Smriti
Maa Smriti is registered in RERA under new projects as follows - Maa Smriti A To C And E To H P52000005053 Moraj Maa Smriti is a housing community located at Khopoli, Mumbai. The project containing a total of 336 apartments is presently under construction. The 1 BHK apartments offered by the project measuring in sizes ranging from 400 to 650 sq ft and priced between Rs.13.2 and 21.4 lakh are available to the buyers from the builder as well as via resale of property. The project sprawled over an ...View more
![HDFC (5244) HDFC (5244)]()
![Axis Bank Axis Bank]()
![PNB Housing PNB Housing]()
![Indiabulls Indiabulls]()
![Citibank Citibank]()
![DHFL DHFL]()
![L&T Housing (DSA_LOSOT) L&T Housing (DSA_LOSOT)]()
![IIFL IIFL]()
- + 3 more banksshow less
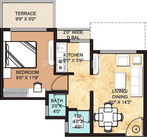
- 1 BHK
- Children's play area
- Multipurpose Room
- Jogging Track
- Car Parking
- Gymnasium
- Club_House
- 24_X_7_Security
- Power_Backup
- Indoor_Games
- 24 Hours Water Supply
- Community Hall
- Gated Community
- Closed Car Parking
- Landscape Garden and Tree Planting
- Fire Sprinklers
Moraj Maa Smriti Gallery
Payment Plans


About Moraj Infratech

- Years of experience27
- Total Projects16
- Ongoing Projects2


























