


- Possession Start DateFeb'17
- StatusCompleted
- Total Launched apartments4
- Launch DateOct'15
- AvailabilityResale
Salient Features
- Loaded with amenities like rainwater harvesting
- Accessibility to key landmarks
- Stratigically located schools, hospitals, restaurants, banks
More about Kale Koyna Apartment
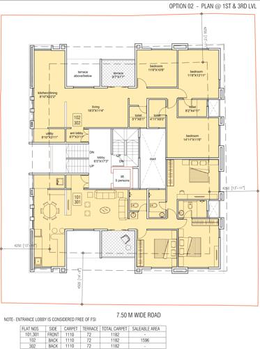
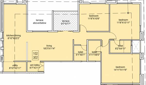
Koyna Apartment is a premium housing project launched by Kale Joshi in Kothrud, Pune. These 3 BHK Apartment in Pune West are available from 1315 sqft to 1596 sqft. Among the many luxurious amenities that the project hosts are Rain Water Harvesting, Power Backup, 24 X 7 Security, Card Key Access At Lobby Level, Fire Fighting Solutions etc. Starting at @Rs 12,500 per sqft, Apartment are available at attractive price points. The Apartment will be available for sale from Rs 2.00 crore.
![HDFC (5244) HDFC (5244)]()
![Axis Bank Axis Bank]()
![PNB Housing PNB Housing]()
![Indiabulls Indiabulls]()
![Citibank Citibank]()
![DHFL DHFL]()
![L&T Housing (DSA_LOSOT) L&T Housing (DSA_LOSOT)]()
![IIFL IIFL]()
- + 3 more banksshow less
Project Specifications
- 3 BHK
- 24 X 7 Security
- Power Backup
- Car Parking
- Lift Available
- Card Key Access At Lobby Level
- Cctv
- Fire Fighting System
- Rain Water Harvesting
- Separate Water Line For Drinking Water
- SS Garbage Chute
- Solar Water Heating
Kale Koyna Apartment Gallery

About Kale Joshi

- Total Projects2
- Ongoing Projects0
























