
Mutha Kamdhenu Siddhiby Mutha
Price on request
Builder Price
2, 3 BHK
Apartment
952 - 1,324 sq ft
Builtup area
Project Location
Kothrud, Pune
Overview
- Oct'12Possession Start Date
- CompletedStatus
- 70Total Launched apartments
- ResaleAvailability
Salient Features
- Club house, children play area to enhance your living style
- Accessibility to key landmarks
- Civic amenities like schools, hospitals, restaurants, banks
More about Mutha Kamdhenu Siddhi
Kamdhenu Siddhi is taking an imposing shape near Mahatma Society, Kothrud. 2/3 BHK flats with an option of terraces offer maximum convenience and comfort. Elegantly designed homes with open courtyard welcomes natural light and fresh air in abundance. Your wish list for an ideal home need some imagination at KAMDHENU SIDDHI as every amenity that you longed for is made available right from the word go.
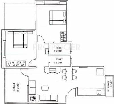
Mutha Kamdhenu Siddhi Floor Plans
- 2 BHK
- 3 BHK
| Floor Plan | Area | Builder Price |
|---|---|---|
![]() | 1324 sq ft (2BHK+2T) | - |
Report Error
Our Picks
- PriceConfigurationPossession
- Current Project
Mutha Kamdhenu Siddhiby MuthaKothrud, PuneData Not Available2,3 BHK Apartment952 - 1,324 sq ftOct '12 - Recommended
Code name Real Bhavdhanby Oree ReailtyBavdhan, Pune₹ 88.00 L - ₹ 1.77 Cr2,3,4 BHK Apartment824 - 1,659 sq ftDec '26 - Recommended
Ganga Legend B2by Goel Ganga GroupBavdhan, Pune₹ 66.02 L - ₹ 92.65 L2 BHK Apartment551 - 773 sq ftNov '24
Mutha Kamdhenu Siddhi Amenities
- Children's play area
- Club House
- Internet/Wi-Fi
- Community Hall
- Intercom facility
- Temple
- Fire Fighting System
- Rainwater harvesting
Mutha Kamdhenu Siddhi Specifications
Doors
Main:
Decorative with Brass Fittings
Walls
Exterior:
Sand Faced Plaster
Interior:
Oil Bound Distemper
Kitchen:
Glazed Tiles Dado up to Lintel Level
Toilets:
Glazed Tiles Dado up to Lintel Level
Gallery
Mutha Kamdhenu SiddhiElevation
Mutha Kamdhenu SiddhiFloor Plans
Mutha Kamdhenu SiddhiNeighbourhood
Contact NRI Helpdesk on
Whatsapp(Chat Only)
Whatsapp(Chat Only)
+91-96939-69347
Contact Helpdesk on
Whatsapp(Chat Only)
Whatsapp(Chat Only)
+91-96939-69347
About Mutha

- 52
Years of Experience - 6
Total Projects - 0
Ongoing Projects - RERA ID
Mutha Group consider ourselves lucky to be in the profession that makes you grow economically, intellectually, socially and philosophically too. Building homes has been our passion that has been kept alive by our countless happy customers and business associates. Mutha Group known for its commitment to aspirations of its customers has lived up to the test of time with flying colors. Operating in a sector where competition drives for compromises, we have made a pleasant exception. An exception th... read more
Similar Projects
- PT ASSIST
Oree Code name Real Bhavdhanby Oree ReailtyBavdhan, Pune₹ 74.79 L - ₹ 1.50 Cr - PT ASSIST
Goel Ganga Legend B2by Goel Ganga GroupBavdhan, Pune₹ 66.02 L - ₹ 92.65 L - PT ASSIST
Goel Ganga Legend A4 And B1by Goel Ganga GroupBavdhan, PunePrice on request - PT ASSIST
Goel Ganga Legend Building A1by Goel Ganga GroupBavdhan, PunePrice on request - PT ASSIST
Tayal K Pune Bavdhanby Tayal CorpBavdhan, Pune₹ 1.00 Cr - ₹ 2.22 Cr
Discuss about Mutha Kamdhenu Siddhi
comment
Disclaimer
PropTiger.com is not marketing this real estate project (“Project”) and is not acting on behalf of the developer of this Project. The Project has been displayed for information purposes only. The information displayed here is not provided by the developer and hence shall not be construed as an offer for sale or an advertisement for sale by PropTiger.com or by the developer.
The information and data published herein with respect to this Project are collected from publicly available sources. PropTiger.com does not validate or confirm the veracity of the information or guarantee its authenticity or the compliance of the Project with applicable law in particular the Real Estate (Regulation and Development) Act, 2016 (“Act”). Read Disclaimer
The information and data published herein with respect to this Project are collected from publicly available sources. PropTiger.com does not validate or confirm the veracity of the information or guarantee its authenticity or the compliance of the Project with applicable law in particular the Real Estate (Regulation and Development) Act, 2016 (“Act”). Read Disclaimer




















