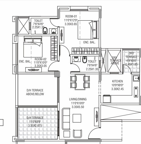
2 BHK Apartment
540 - 575 sq ft



‘Horizons at Wakad’ offers carefully planned and smartly designed 2 & 3 BHK terrace homes, giving you enough room to find your own space. Not to forget, the open space within the residential premises that allows you to stretch your imagination while your family makes the most out of life.










