India's best property portal to buy property in India - Proptiger.com
Possession : Mar'25
Rera
PRM Sriniketan
Price on request
Builder Price
Configuration
2 BHK
Builtup area1 sq M = 10.76 sq ft
904 - 988 sq ft
Possession Status
Completed
Overview
  • Possession Start Date
    Mar'25
  • Status
    Completed
  • Total Area
    2.69 Acres
  • Launch Date
    Feb'20
  • Availability
    Resale
  • RERA ID
    HIRA/P/DAR/2020/000951

Project Specifications

Others
Windows:
Anodized Aluminium Sliding
Frame Structure:
RCC framed structure
Doors
Internal:
Flush Door
Main:
Flush Door
Walls
Toilets:
Ceramic Tiles
Kitchen:
Vitrified Tiles
Exterior:
Textured Paint
Interior:
Putty Finish
Flooring
Kitchen:
Anti Skid Ceramic Tiles
Other Bedroom:
Vitrified Flooring
Master Bedroom:
Vitrified Flooring
Balcony:
Ceramic Tiles
Toilets:
Anti Skid Ceramic Tiles
Living/Dining:
Vitrified Flooring
Fittings
Toilets:
CP fittings
Kitchen:
Granite platform with stainless steel sink
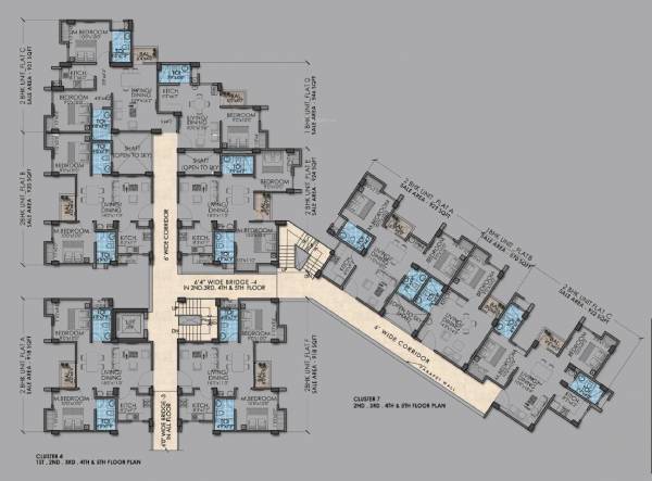
PRM Sriniketan Floor Plans
  • 2 BHK
-
PRM Sriniketan Amenities

About PRM Begraj And Ajay Begraj Group

PRM Begraj And Ajay Begraj Group
  • Total Projects5
  • Ongoing Projects4

More projects by PRM Begraj And Ajay Begraj Group

Similar Projects

Developer Network

  • 400+
    Reputed Developers