


- Possession Start DateJan'17
- StatusCompleted
- Total Launched villas18
- Launch DateFeb'13
- AvailabilityNew and Resale
More about Penta Olive
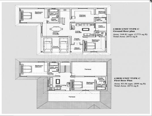
Penta Olive Thrissur is an initiative by Penta Homes and comes with 3 BHK and 4 BHK apartments for buyers. Average home sizes range between 1792 and 2672 sq. ft. at this project while it offers several amenities and other facilities to buyers including a playing zone for kids, free membership to club house, 24 hour security services, street lighting, landscaped gardens, guard room and internal roads. The project lies near the MLA road junction in addition to the Amala Medical College and Bharadi...View more
Project Specifications
- 3 BHK
- 4 BHK
- Children's play area
- Club House
- 24 X 7 Security
- Elegant Roads
- Jogging Track
- Landscape Garden and Tree Planting
- Street Lighting
- Card Room
Penta Olive Gallery
About Penta Homes

- Total Projects7
- Ongoing Projects0






