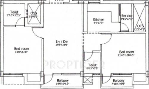
2 BHK Apartment
900 - 1,000 sq ft



Guru Heritage, a residential concept of community living, is a widely spread residential project by Sri Raghavendra Foundation Pvt Ltd . Sri Raghavendra Foundation Pvt Ltd is India's premier real estate and infrastructure development company. Guru Heritage is located at Perungalathur,Chennai ; offering a blessed nature friendly lifestyle in the heart of the City. Guru Heritage is a beautiful lifestyle apartments with a herd of amenities.









